Property Description
Nestled among mature trees along scenic Sligo Creek Parkway, this .69-acre parcel presents a rare opportunity to build a custom home in a park-front setting without starting from scratch!
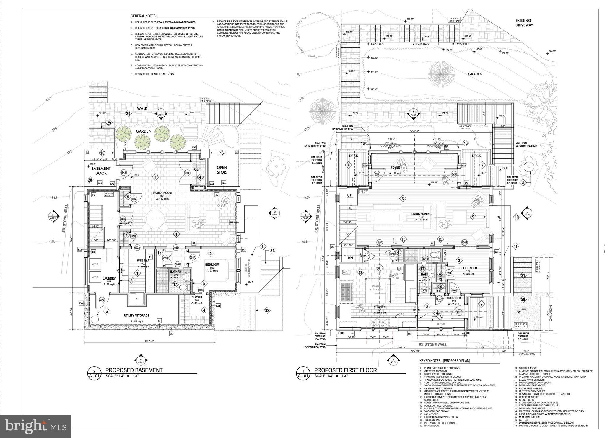
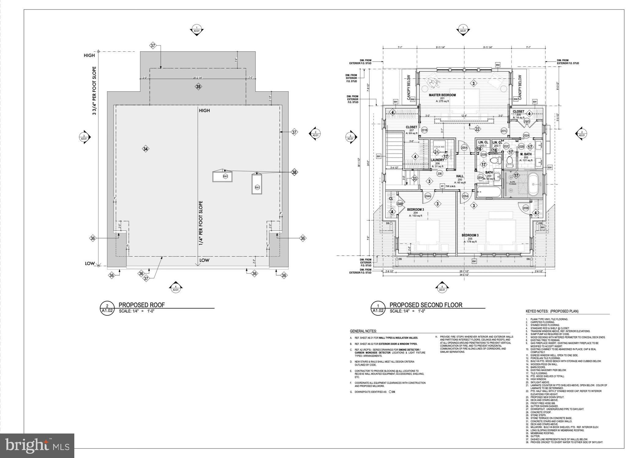
Previously approved architectural plans were in place and a foundation was poured, significantly reducing the upfront work typically required for new construction. Utilities are at the site (not currently connected), and there are two existing paved driveways and parking pads in front and back. Reinstating prior approvals (including for tree protection, with all tree work completed) may be substantially more efficient than beginning a new entitlement process, offering a meaningful head start for builders or end-users.
Perched above Sligo Creek for enhanced light, privacy, year-round water views, and the gentle rushing sounds of Sligo Creek, the property feels like a secluded woodland retreat while remaining just minutes from Downtown Takoma Park, Silver Spring, Metro, restaurants, shops, schools, playgrounds, and the Takoma Park Farmers Market. Miles of walking and biking trails are directly across the street, creating a seamless connection to nature.
An exceptional opportunity for architects, builders, or buyers seeking a one-of-a-kind homesite with existing infrastructure in place. Adjacent property at 702 Sligo Creek Parkway is also available, presenting a rare chance for expanded and rare park-front acreage, compound living, or long-term flexibility. Buyer to independently verify zoning, permits, utilities, and development potential. Property conveys as-is.
Previously approved architectural plans were in place and a foundation was poured, significantly reducing the upfront work typically required for new construction. Utilities are at the site (not currently connected), and there are two existing paved driveways and parking pads in front and back. Reinstating prior approvals (including for tree protection, with all tree work completed) may be substantially more efficient than beginning a new entitlement process, offering a meaningful head start for builders or end-users.
Perched above Sligo Creek for enhanced light, privacy, year-round water views, and the gentle rushing sounds of Sligo Creek, the property feels like a secluded woodland retreat while remaining just minutes from Downtown Takoma Park, Silver Spring, Metro, restaurants, shops, schools, playgrounds, and the Takoma Park Farmers Market. Miles of walking and biking trails are directly across the street, creating a seamless connection to nature.
An exceptional opportunity for architects, builders, or buyers seeking a one-of-a-kind homesite with existing infrastructure in place. Adjacent property at 702 Sligo Creek Parkway is also available, presenting a rare chance for expanded and rare park-front acreage, compound living, or long-term flexibility. Buyer to independently verify zoning, permits, utilities, and development potential. Property conveys as-is.
Overview
Property Type
Land
Location
704 SLIGO CREEK PARKWAY, TAKOMA PARK, MD 20912
Zoning
R60
MLS ID
MDMC2206550
Listing Last Updated
Property Features & Amenities
Interior
Exterior
Water Source
Public
Sewer
Public Sewer
Details
Financial
Price
$750,000
Real Estate Tax
$7,449/yr
Exclusive Listing Agents