Property Description
NEW PRICE!
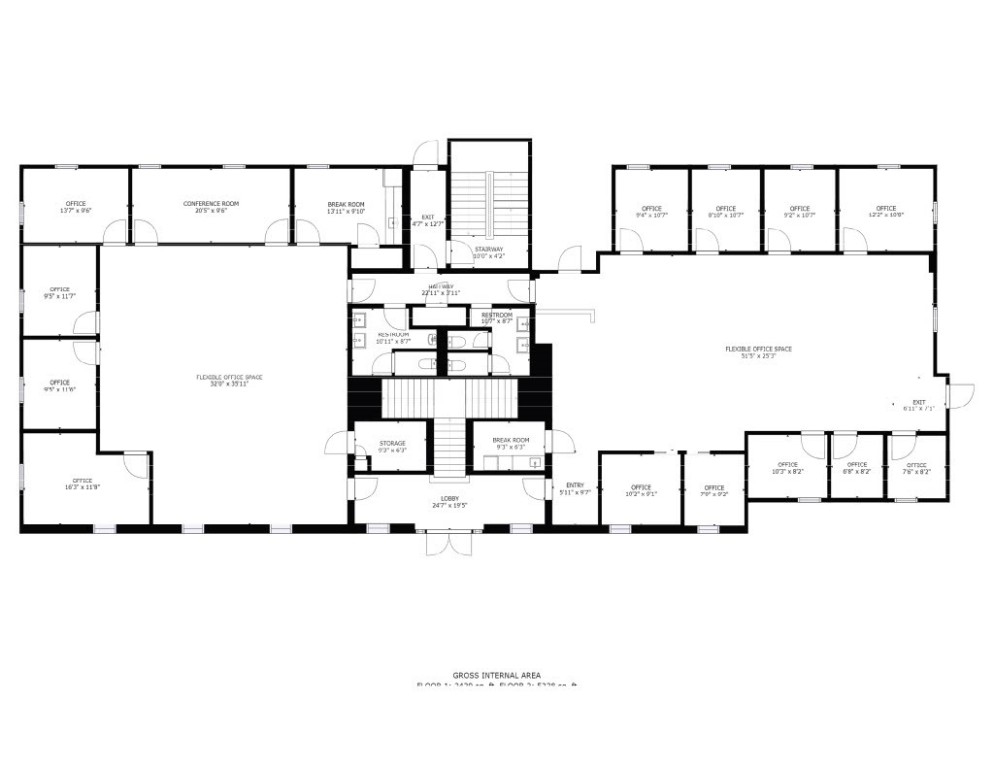
Downtown Wakefield. Main Street location offers great visibility & paved parking for 40+/- vehicles. CD zoning allows a multitude of uses. This impressive 10,620 sq.ft free-standing 2 story brick-sided office building offers 2 units - each share 2 restrooms on the 1st & 2nd floors.
The "front office" is currently vacant. The 1st floor has 4 private windowed offices, conference room and kitchen/break room - plus large flexible office space area ideal for cubicle-style offices. The 2nd floor has a private office & spacious flexible office space area that would accommodate additional private cubicle-style offices, & receptionist area.
The "rear office" is currently leased until 2/28/24. The 1st floor has 8-9 private windowed offices & flexible office space area which currently contains 7 cubicle-style offices, & an area for a receptionist. The 2nd floor of this unit offers 2 large private offices, a large conference room, & 5 cubicle-style offices. Current lease generates $92,714 in rent annually.
Building's lower level provides ample storage, kitchen/conference room, and utility room(s). Total building square footage includes common areas: lobby, hallways, and other finished areas. Owner pays property taxes. Furniture, fixtures & office equipment will not convey.
Downtown Wakefield. Main Street location offers great visibility & paved parking for 40+/- vehicles. CD zoning allows a multitude of uses. This impressive 10,620 sq.ft free-standing 2 story brick-sided office building offers 2 units - each share 2 restrooms on the 1st & 2nd floors.
The "front office" is currently vacant. The 1st floor has 4 private windowed offices, conference room and kitchen/break room - plus large flexible office space area ideal for cubicle-style offices. The 2nd floor has a private office & spacious flexible office space area that would accommodate additional private cubicle-style offices, & receptionist area.
The "rear office" is currently leased until 2/28/24. The 1st floor has 8-9 private windowed offices & flexible office space area which currently contains 7 cubicle-style offices, & an area for a receptionist. The 2nd floor of this unit offers 2 large private offices, a large conference room, & 5 cubicle-style offices. Current lease generates $92,714 in rent annually.
Building's lower level provides ample storage, kitchen/conference room, and utility room(s). Total building square footage includes common areas: lobby, hallways, and other finished areas. Owner pays property taxes. Furniture, fixtures & office equipment will not convey.
Overview
Property Type
Commercial
Location
138 Main Street, South Kingstown, RI 02879
Zoning
CD
MLS ID
1336205
Listing Last Updated
Property Features & Amenities
Interior
Exterior
Stories
3
Water Source
Connected, Public
Utilites
Electricity Available, Natural Gas Not Available, Municipal Utilities, Phone Available, Water Connected, Sewer Connected
Heat Type
Central, Common, Hot Water, Individual, Zoned
Air Conditioning
Central Air
Sewer
Connected, Public Sewer, Sanitary
Substructure
Concrete Perimeter
Amenities
Maintenance
Security Features
Carbon Monoxide Detector(s), Fire Alarm, Fire Escape, Firewall(s), Security Lights
Details
Total Area
8,650 Sq.Ft.
Financial
Price
$1,200,000
Real Estate Tax
$15,305/yr
Exclusive Listing Agents