Property Description
***Seller is providing a $5,000.00 credit towards buyer's closing costs.
Imagine coming home to easy, low maintenance living in a stunning, new community where convenience meets comfort. This isn't just a townhome, it's a home that may be purchased with NO MONEY DOWN and the perfect blend of upscale style and generous space, designed for the life you want to live.
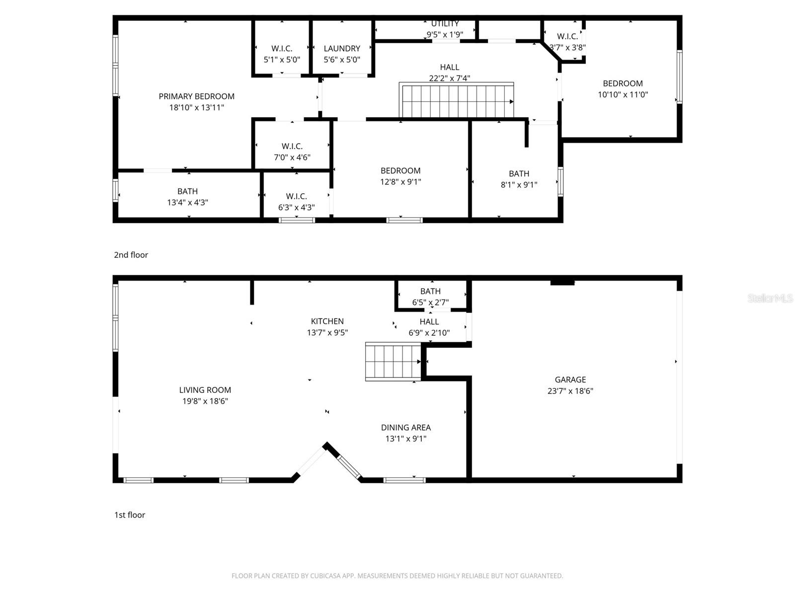
Step inside this upgraded, modern Mattamy build (the coveted Venice floorplan) and feel the difference. The open-concept main floor is the heart of the home, a spacious great room flowing seamlessly into the kitchen and dining area. The entire downstairs shines with beautiful tile flooring and is bathed in natural light. The kitchen is ready to go with sleek stainless-steel appliances and convenient pendant light hook-ups over the breakfast bar. Picture yourself hosting friends or enjoying a cozy evening in a space that's as inviting as it is elegant.
But here's the best part: This is a highly desirable corner lot that comes with a private yard, a true rarity in this community! Enjoy your morning coffee outside or give a pet a little green space, all without the maintenance hassle of a single-family home. Plus, you get the essential two-car garage, a feature that makes everyday life so much easier.
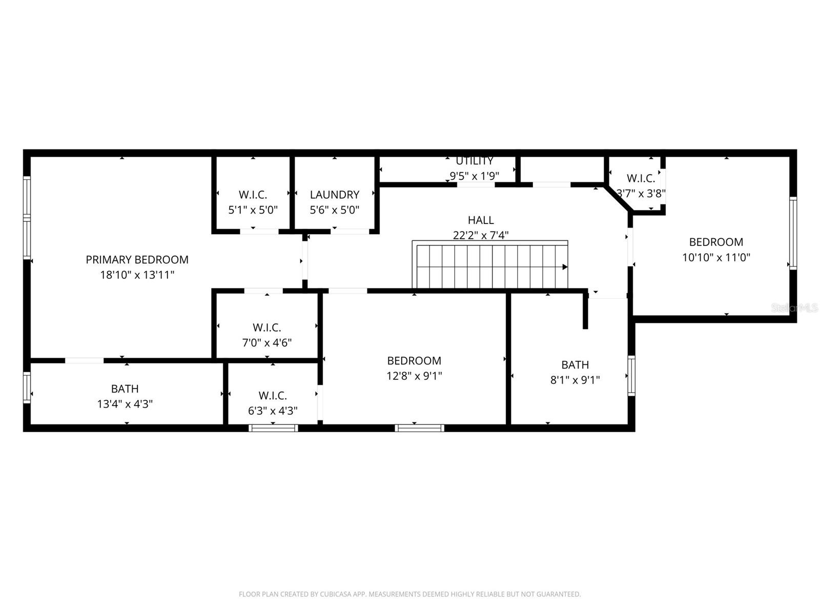
Upstairs, you'll find cozy plush new carpet and wireless, modern fans in every room. The primary suite is your serene retreat, boasting not one, but two spacious walk-in closets and an elegant dual-vanity bathroom, the peaceful sanctuary you deserve at the end of a busy day. Bedrooms 2 and 3 provide comfortable, private spaces for family or a home office; bedroom 2 even has its own walk-in closet! To top it off, the washer and dryer are included, making your move-in seamless.
The location? Unbeatable. You are ideally situated near everything. World-famous theme parks, premier shopping, amazing dining, and top-tier entertainment are all just minutes away.
This is more than a townhome; it's an exceptional lifestyle opportunity. Don't miss your chance to start your next chapter in this beautiful, convenient, and surprisingly spacious home! Don't forget, this home may be purchased with NO MONEY DOWN!
Imagine coming home to easy, low maintenance living in a stunning, new community where convenience meets comfort. This isn't just a townhome, it's a home that may be purchased with NO MONEY DOWN and the perfect blend of upscale style and generous space, designed for the life you want to live.
Step inside this upgraded, modern Mattamy build (the coveted Venice floorplan) and feel the difference. The open-concept main floor is the heart of the home, a spacious great room flowing seamlessly into the kitchen and dining area. The entire downstairs shines with beautiful tile flooring and is bathed in natural light. The kitchen is ready to go with sleek stainless-steel appliances and convenient pendant light hook-ups over the breakfast bar. Picture yourself hosting friends or enjoying a cozy evening in a space that's as inviting as it is elegant.
But here's the best part: This is a highly desirable corner lot that comes with a private yard, a true rarity in this community! Enjoy your morning coffee outside or give a pet a little green space, all without the maintenance hassle of a single-family home. Plus, you get the essential two-car garage, a feature that makes everyday life so much easier.
Upstairs, you'll find cozy plush new carpet and wireless, modern fans in every room. The primary suite is your serene retreat, boasting not one, but two spacious walk-in closets and an elegant dual-vanity bathroom, the peaceful sanctuary you deserve at the end of a busy day. Bedrooms 2 and 3 provide comfortable, private spaces for family or a home office; bedroom 2 even has its own walk-in closet! To top it off, the washer and dryer are included, making your move-in seamless.
The location? Unbeatable. You are ideally situated near everything. World-famous theme parks, premier shopping, amazing dining, and top-tier entertainment are all just minutes away.
This is more than a townhome; it's an exceptional lifestyle opportunity. Don't miss your chance to start your next chapter in this beautiful, convenient, and surprisingly spacious home! Don't forget, this home may be purchased with NO MONEY DOWN!
Overview
Property Type
Townhouse
Location
1195 BOARDWALK PL, KISSIMMEE, FL 34747
Zoning
RES
MLS ID
O6371692
Listing Last Updated
Property Features & Amenities
Interior
Total Bedrooms
3
Full Bathrooms
2
Half Bathrooms
1
Flooring
Carpet, Tile
Appliances
Cooktop, Dishwasher, Disposal, Dryer, Electric Water Heater, Exhaust Fan, Microwave, Refrigerator, Washer
Other Interior Features
Ceiling Fans(s), Kitchen/Family Room Combo, Stone Counters
Exterior
Stories
2
Garage Spaces
2.0
Water Source
Public
Utilites
BB/HS Internet Available, Cable Available, Electricity Connected, Water Connected
Roof
Shingle
Lot Features
Corner Lot, Sidewalk
Parking
Garage Door Opener, On Street
Heat Type
Electric
Air Conditioning
Central Air
Sewer
Public Sewer
Substructure
Slab
Other Exterior Features
Rain Gutters, Sidewalk, Sliding Doors
Details
Total Area
2,104 Sq.Ft.
Financial
Price
$370,000
Real Estate Tax
$6,025/yr
HOA
$253/mo
Exclusive Listing Agents